2-Raumwohnung mit Balkon in nördlicher Stadtrandlage

575,00 €
  • Datum des Eintrags: 18.11.25
  • Schlafzimmer: 1
  • Badezimmer: 1
  • Stockwerke: 1
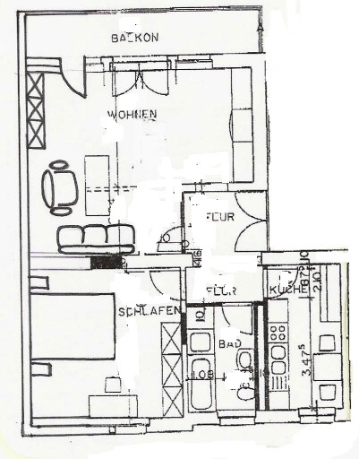
  • Wohnfläche: 70 m²
  • Baujahr: 2000

Share this:

Beschreibung

Die moderne Wohnung hat ein großes Wohnzimmer, ein Schlafzimmer, eine Küche, ein 2024 neu eingebautes Tageslicht-Bad und einen Balkon, außerdem steht ein PKW-Stellplatz und ein Kellerraum zur Verfügung.

Wohnfläche:   70 m²

Mietpreis: 575,- € + 22,- €/PKW-Stellplatz + 250,- €/NK

Mietbeginn:  01.02.2026

Energieausweisdaten: es handelt sich um einen 16.12.2017 erstellten Energieverbrauchsausweis, Energieverbrauch: 82,2 kwh (m²*a), Baujahr des Hauses und des Energieerzeugers lt. E.Auswe.: 2000, KwK fossil, E.Effizienzklasse C

Eigenschaften

Ausstattung:

  • Bad in 2024 neu eingebaut
  • Balkon
  • Küche mit Fenster
  • Tageslichtbad

Powered by Estatik